ガレージプラン #03
GARAGE PLANNING
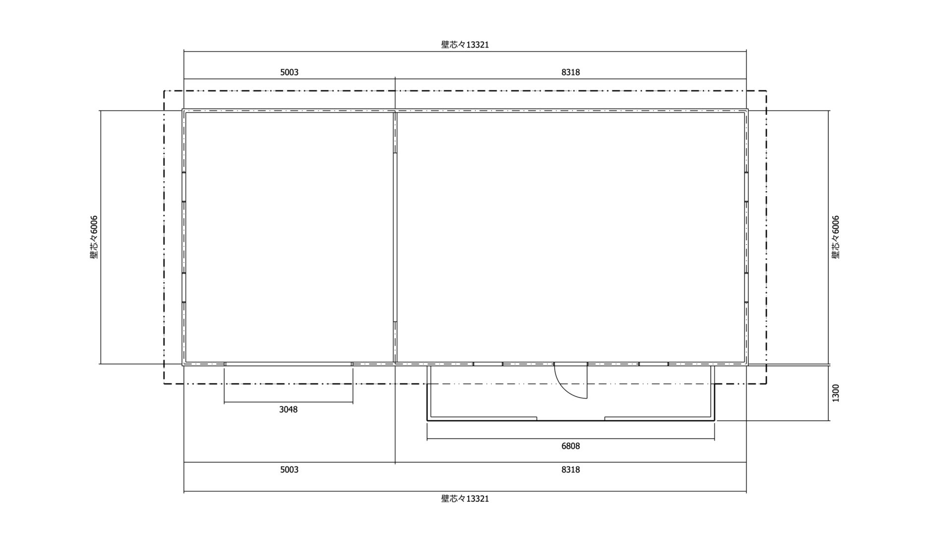
ガレージドアとポーチを配置したことで軒側を正面にした大型ガレージ
03
20×44フィート+ポーチ
Size: 6,006×13,321mm
面積: 80.0㎡(24.2坪)
Garage Door: 3,048×2,438mm
Size: 6,006×13,321mm
面積: 80.0㎡(24.2坪)
Garage Door: 3,048×2,438mm
GARAGE PLANNING
ガレージドアとポーチを配置したことで軒側を正面にした大型ガレージ